
LC型垂直螺旋输送机是利用强迫喂料螺旋旋转而输送物料提升的连续输送设备。适用于粉状、块状、粒状物料,如面粉、谷类、水泥、化肥、灰渣、砂子、石子、煤粉、块煤等物料。用于建材、冶金、化工、采掘、机械制造、煤灰、烟草、粮食、食品、医药等行业。由于机毂内流通面积较小,故不宜输送易变质、粘性大、腐蚀性和易结块的物料。
螺旋输送机分水平槽机体(即喂料螺旋槽机体)和垂直机体两部分。垂直机体分头节、中间节、尾节三部分,每一部分又有集中不同规格的长度依机高选择,可组成3~15m不同高度的整机,螺旋机每增加0.5m为一高度规格,供用户选择。
驱动形式为垂直水平螺旋分别驱动,其中垂直机体为上驱动。
1,垂直螺旋输送机适用于输送各种粉状和颗粒状物料,如碳黑、面粉、水泥、砂子、谷物及再生胶粉等。
2,该设备不宜输送易变质、粘性大、易结块和腐蚀性的物料。
3,工作环境温度应在-20℃~50℃范围内,输送物料的温度应低于200℃。
4,适宜于垂直或较大倾角输送粉状、粒状、非粘性的、松散密度不大于1.3t/m³的干燥物料,如粮食、油麸、饲料、化工原料、水泥等。物料温度一般不能超过80℃。
5,垂直螺旋输送机不适宜输送块状及粘性的物料,也不宜输送松散密度小于0.5t/m³且流动性很强的物料,如粉煤灰。
1.承载能力大、安全可靠。
2.适应性强、安装维修方便、寿命长。
3.整机体积小、转速高、确保快速均匀输送。
4.出料端设有清扫装置,整机噪声低、适应性强,进出料口位置布置灵活。
5.密封性好、外壳采用无缝钢管制作,端部采用法兰互相连接成一体,刚性好。
LC型垂直螺旋输送机型号:

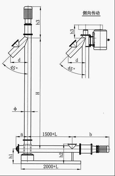
LC型垂直螺旋输送机结构图:


LC型垂直螺旋输送机外形尺寸:


LC型垂直螺旋输送机技术参数表:

- 上一篇:没有了;
- 下一篇:DS型连续斗式输送机




