
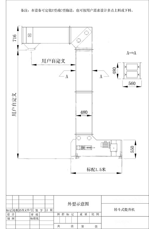
转斗式提升机工作原理是在封闭的壳体内,通过悬挂在链条上的料斗进行物料的输送。其主要组成形式有Z字型、C字型,一字水平型。其工作原理及特点相同,用于水平—垂直—水平输送粉状、颗粒状及小块状物料。其结构紧凑、占地面积小、提升高度大、密封性能好、物料无破损。本机载荷大便于保养。转斗式提升机的适用范围:斗式提升机、转斗式提升机广泛应用于各种需要柔和处理的环境。Z型提升上料,C型提升上料,Z—C混合型供料及多点上料,多点下料等场合。目前多用于称重包装机的上料,色选机的上料提升及复选供料,自动化生产线的立体循环上下料。广泛应用于:宠物食品业,膨化食品业,饲料行业,糖果行业,干鲜果品业,保健食品业,粮食精加工处理业,化工医药业,五金电料业,军工制造业等等。设备主体框架可根据使用需求的不同选用碳钢喷塑、304不锈钢、316L不锈钢等材质,料斗材质有改性塑料料斗、碳钢料斗、不锈钢料斗可选。
转斗式提升机适用于低处往高处提升,提升物料通过振动给料机缓冲以后均匀的投入提升料斗后机器自动连续运转向上运送。根据传送量可调节传送速度,并随需选择提升高度。料斗为我司自行设计制造,食品级PP无毒料斗使该型斗式提升机使用更加广泛,所有尺寸均按照实际需要设计制造,为配套立式包装机,电脑计量机设计,适用于食品、医药、化学工业品、螺丝、螺帽等产品的提升上料,可通过包装机的信号识别来控制机器的自动停启。转斗式诱导提升机按照进料、出料口的位置不同分为Z型斗式提升机、C型斗式提升机;按照出料口的数量不同分为:单点出料斗式提升机和多点出料斗式提升机,出料点可自由设定,由设备自动完成落料控制。
转斗式提升机工作原理是在封闭的壳体内,通过悬挂在链条上的料斗进行物料的输送。其主要组成形式有Z字型、C字型,一字水平型。其工作原理及特点相同,用于水平—垂直—水平输送粉状、颗粒状及小块状物料。

斗式提升机、转斗式提升机广泛应用于各种需要柔和处理的环境,提升物料通过振动给料机缓冲以后均匀的投入提升料斗后机器自动连续运转向上运送。根据传送量可调节传送速度,并随需选择提升高度。
目前多用于称重包装机的上料,色选机的上料提升及复选供料,自动化生产线的立体循环上下料。广泛应用于:宠物食品业,膨化食品业,饲料行业,糖果行业,干鲜果品业,保健食品业,粮食精加工处理业,化工医药业,五金电料业,军工制造业等等。设备主体框架可根据使用需求的不同选用碳钢喷塑、304不锈钢、316L不锈钢等材质,料斗材质有改性塑料料斗、碳钢料斗、不锈钢料斗可选。
其结构紧凑、占地面积小、提升高度大、密封性能好、物料无破损。本机载荷大、便于保养。

转斗式提升机形式选择

转斗式诱导提升机按照进料、出料口的位置不同分为Z型斗式提升机、C型斗式提升机;按照出料口的数量不同分为:单点出料斗式提升机和多点出料斗式提升机,出料点可自由设定,由设备自动完成落料控制。

注意事项:
如需该设备,请提供物料的特性及输送产量和输送要求,以便我们对设备做出最准确的判断。
- 上一篇:高效斗式提升机
- 下一篇:TH型环链斗式提升机




