
河南省新消消防安全设备有限公司牌吊式圆盘给料机是由河南省新消消防安全设备有限公司公司结合国内外同类给料机设备先进技术的基础上改造而成的,吊式圆盘给料机为容积式计量的给料设备。它能均匀、连续地将物料喂送到下一道工序,并且能够承受较大的仓压。适合作为中、细粒度物料、各种非粘性物料的给料设备,吊式给料机适用于喂送各种非粘性物料,不适用于流动性好的粉状物料。如煤粉、水泥、熟料、石灰石、粘土、石膏、炉渣等。适用于空气净化程度要求不高的场合。
新型吊式圆盘给料机是物料运输机的一种辅助设备,通常用于从料仓、漏斗和其它容器向运输机械或容具连续均匀供给容量不大于2500kg/m3的块状、颗粒状物料。本设备的工作环境温度为-40°C--40°C,不适于输送流动性太差或流动性特别好的物料。

应用特点
1. 吊式圆盘给料机是物料运输输送机械的一种辅助设备,是利用物料的流动性为容积计量的给料设备。
2. 吊式圆盘给料机能均匀、连续地将物料喂送到下一道工序,并且能够承受较大的仓压。
3. 适用于给送各种非粘性物料,不适用于流动性好的粉状物料。
4. 通过转动的圆盘和可调节的刮料板把物料从容器中刮送到受料设备中。
5. 适用于各种非粘性且流动性不是非常好的物料。
6. 通常用于从料仓,漏斗和其它容器向运输机械或器具连续均匀供给容量不大于2000kg/m 3的块状,颗料状等物料,如煤、水泥、矿石、石灰石、粘土等,
7. 吊式圆盘给料机给料精确并能减低物料的粉碎作用,适用于水泥厂、选煤厂、发电厂、化工与建筑部门及部分冶金、矿山部门精确地、连续均匀地给料与配料之用,但不适用于输送流动性太差或流动性特别好的物料。
8. 设计紧凑,结构简单,调节方便,使用可靠,维修量小,噪音很低
9. 吊式圆盘给料机分开式和封闭式结构。闭式结构防尘,防灰,但调节运转均在封闭的壳体内,不够直观;开式结构则适用于灰尘性不大的物料,并且运转,调节均直观明了。
10. 侧衬板、斜衬板与底板之间留缝可调,能比较准确地控制留缝大小,大大减少了漏料。
11. 驱动装置对称布置,并采用双推杆,使整机爱力均衡,传动平稳,消除了底板往复时的扭摆现象
12. 底板有立向筋板,并用三道通长托辊支承,保证了底板本身刚度,消除了现有往复式给料机底板工作中弯曲变形的弊病。
13. 衬板由小块耐磨钢板拼成,这样不仅更换时轻便容易,而且可以根据实际磨损情况,有针对性地更换磨损了的衬板块,从而使材料合理利用,降低维修费。
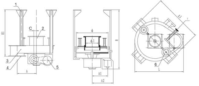
结构原理
吊式圆盘给料机结构图:

1、吊架 2、进料口 3、圆盘 4、出料口 5、驱动部分(电机+减速机等) 6、进口调节杆 7、出口调节杆
吊式圆盘给料机主要由电动机、减速装置、圆盘、般套、刮板、喂料调节装置及槽钢柱等几部分组成。它由悬吊在盘套侧面的电动机,经过三角皮带、蜗轮减速机立轴带动圆盘旋转。盘套的下节与蜗轮减速机连接,上节通过槽钢柱与料仓连接,电动机则通过电动机底座固定在盘套的侧面。
吊式圆盘给料机是适用于20mm以下粉矿的给料设备。 圆盘式给料机由驱动装置、给料机本体、计量用带式输送机和计量装置组成。该圆盘给料机和带式输送机由一套驱动装置驱动,该驱动装置的电磁离合器具有实现给料机的开、停和兼有功能转换的作用。计量带式输送机的带速小于1m/s,为了测定带速设有速度检测装置,为了防止称量辊偏斜设有检测杆进行调整。
技术参数
吊式圆盘给料机主要技术性能参数:

吊式圆盘给料机技术参数:


购买说明
1、DK、DB型吊式圆盘给料机供货时一般为减速机及普通电机,如需在特殊场合中使用,需订货时说明,如改用防爆电机、减速机或有其它特殊要求等。
2、DK、DB型吊式圆盘给料机,也可制成座式,并且也分闭式和开式两种结构。




