
往复式给料机用于煤或其它磨琢性小、粘性小的松散粒状物料的给料,将储仓或料坑里的物料连续均匀地卸落到运输设备或其他筛选设备中。与其它惯性振动给料机相比,该往复式给料机,其经典的工作原理和成熟的结构形式,不仅能满足不同现场对物料大处理量的需求,而且,落地式安装方式很大程度上提高了设备整机对工作环境的适应性,因而运行更可靠、更安全。
往复式给料机又叫往复式给煤机,是在原K系列往复式给煤机的基础上经进一步全面优化而研制的新型高效给料设备。该系列给料机能充分满足现代大型高产高效矿井系统等场合对大流量输送系统的给料要求。是利用曲柄连杆机构拖动下倾5°的底板在辊上做直线往复运动,从而把煤或其它磨琢性小、粘性不大的松散粒状、粉状物料从给料设备中均匀地卸到受料设备中。
往复式给料机适用于矿山、矿井、选煤厂、中站、输煤车间、港口散料码头等散料转运,可将散料经料仓或直接进行均匀的转载到胶带机或其它筛选设备、贮存装置等配合使用。实现对矿石、砂煤、粮食等散装物料的均匀 给料.本设备机体安装于料斗下,传动装置为悬挂式,根据给料量的大小可分:K0、K1、K2、K3、K4等几种型号。
1、工作运转安全可靠且机器使用寿命长;
2、重量轻、体积小、结构简单,调节安装、维护、保养更方便;
3、整机采用封闭式框架结构制作,大大提高了机架的刚度和坚固性能;
4、装有限矩型液力偶合器,能满载启动、过载保护;
5、最大给料量可达1200吨/小时(煤),是目前国内最大的往复式给料机;
6、采用了先进的平面二次包络环面骡杆减速器设计,承载能力大,传动效率高;
7、侧衬板、斜衬板与底板之间留缝可调,能比较准确地控制留缝大小,大大减少了漏料。
8、驱动装置对称布置,并采用双推杆 ,使整机受力均衡,传动平稳,消除了底板往复给料时运转的扭摆现象。
9、底板有立向筋板,并用三道通长托辊支承,保证了底板本身刚度,消除了现有往复式给料机底板工作中弯曲变形的弊病。
10、衬板由小块耐磨钢板拼成,这样不仅更换时轻便容易,而且可以根据实际磨损情况,有针对性地更换磨损了的衬板块,从而使材料合理利用,降低维修费用。
K型往复式给料机工作原理:
K型往复式给料机是由机架、底板(给料槽)传动平台、漏斗闸门、托辊等组成。其传动原理:当电动机开动后,经弹性联轴器、减速器、曲柄连轩机构拖动倾斜的底板在插辊上作直线往复运动,将煤均匀地卸到运输机械或其它筛选设备上。该机设有带漏斗、带调节阀门和不带漏斗、不带调节阀门两种形式。
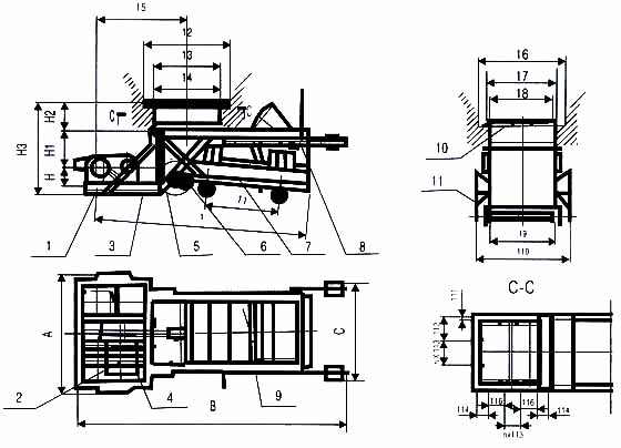
K往复式给料机CAD图纸:
K型往复式给料机外形尺寸表(单位:mm)

往复式给料机曲柄位置与给料量关系表



往复式给料机常见问题
由于往复式给料机采用近共振原理,故能耗低。物料在槽内呈微抛运动,料槽磨损小。
往复式给料机结构简单,重量轻,不需要润滑,维修方便。
采用半波整流控制线路,可在额定产量内无级调节给料量,可用于自动控制的生产流程中,实现生产自动化。
可根据用户要求,提供自动稳幅控制系统。配套微机控制箱可实现智能化给料,稳定性高。
往复式给料机安装说明
往复式给料机(或漏斗)是固定在料仓口下,在安装前需要找平,将机架与料仓口用螺栓坚固。然后再将传动平台找正,H形架与机架、传动平台焊牢。减速机、电机找正,调节好后,螺栓坚固。
往复式给料机订货须知
1、往复式给料机规格有K0、K1、K2、K3、K4型,电源电压有380V和660V两种制式,选用时请确定电压制式及有无防爆要求;
2、设备安装方式有落地式和吊挂式两种情况,并有普通型和防窜仓型两种结构形式,选型时,请务必慎重考虑;设备基础螺栓和吊挂基础一般由用户自备;
3、由于现场实际情况各不相同,建议您在选订设备型号及规格时,尽可能将您的要求描述详尽并与相关专业技术人员充分沟通,以减少不必要的麻烦;
4、签订合同时请写明型号规格、配何种电机、是否带漏斗和调节闸门;
5、随机技术文件:产品合格证、装箱单、产品使用说明书;
往复式给料机生产厂家:河南省新消消防安全设备有限公司
往复式给料机价格咨询热线:15269795252、.
- 上一篇:座式圆盘给料机
- 下一篇:GZ系列电磁振动给料机




